Şimdi sizinle birçok kişinin hayallerini süsleyebilecek bir evi geziyoruz. 260 metrekarelik yaşam alanı olan bu evin hem içi hem de bahçesi keyif yapmak için ideal!

Tasarımları, dekoru, mobilyaları ve genel haliyle ilginizi çekecek bu evi, müstakil ev yapmak isteyenlere fikir olsun diye bir an evvel paylaşalım dedik!

Hadi başlayalım!

260 Metrekarelik Bu İki Katlı Ev Hayallerin Somut Hâli

Büyük müstakil evlere oldukça iyi örnek olabilecek bu evin iç mekan yaşam alanları yaklaşık olarak 260 m2!

İki katlı evin alt katında salon, ayrı yemek odası ve ayrı mutfak bulunuyor. Bunun dışında çok amaçlı bir oda ve misafir tuvaleti ve banyo da giriş katta planlanmış!

hemnet.se

Müstakil Ev, Villa, Bahçe

260 Metrekarelik Bu İki Katlı Ev Hayallerin Somut Hâli

Evin üst katında da 4 yatak odası ve 2 banyo yer almış. Dış cephesi siding kaplı evde, üst katta geniş bir balkon var!

Giriş kat da evin önünde bulunan verandalar ile bağlantı içinde olmuş.

hemnet.se

Müstakil Ev, Villa, Bahçe

260 Metrekarelik Bu İki Katlı Ev Hayallerin Somut Hâli

Evin dış mekanlarında da konforlu yaşam alanları oluşturulmuş. Zaten bahçe geniş olduğu için birçok şey için yer kalmış!

hemnet.se

Müstakil Ev, Villa, Bahçe, Veranda

260 Metrekarelik Bu İki Katlı Ev Hayallerin Somut Hâli

Bahçeden sıcak ve huzurlu bir kare!

hemnet.se

Müstakil Ev, Villa, Bahçe

260 Metrekarelik Bu İki Katlı Ev Hayallerin Somut Hâli

Evin ana girişi olan bu antrenin sol tarafında üst kata çıkan merdivenler planlanmış.

Antrenin doğrudan devamı da giriş kattaki yaşam alanlarına açılmış.

hemnet.se

Müstakil Ev, Antre, Duvar çıtalama

260 Metrekarelik Bu İki Katlı Ev Hayallerin Somut Hâli

Giriş katın en geniş alanlarından biri olan bu salon sadece oturma ihtiyacı için tasarlanmış. Yemek bölümü ve mutfak kendine özel bölümler olarak planlanmış.

Salonu aydınlatan kubbemsi iki pencere ile alana gün ışığı katılmış. Aynı zamanda kış bahçesine açılan kapı da bu bölümün aydınlık kaynağı olmuş.

hemnet.se

Müstakil Ev, Duvar çıtalama, Salon, Yeşil

260 Metrekarelik Bu İki Katlı Ev Hayallerin Somut Hâli

Çıta ve duvar kağıtlarının birleşimiyle dekore edilen duvarlar, dekorda nostalji ve modernin kavuşmasını simgelemiş.

Salon ile yemek bölümü arasında yer alan sütunlar ile de dekorun mimari etkileri pekiştirilmiş.

hemnet.se

Müstakil Ev, Duvar çıtalama, Salon, Yeşil, Duvar kağıdı, Duvar dekorasyonu

260 Metrekarelik Bu İki Katlı Ev Hayallerin Somut Hâli

Evin yemek bölümü olan bu odada iki katı da içine alan şömine konumlandırılmış.

hemnet.se

Müstakil Ev, Duvar çıtalama, Yeşil, Yemek Odası

260 Metrekarelik Bu İki Katlı Ev Hayallerin Somut Hâli

Giriş katta yer alan bu mutfakta yeşil rengin enerjisi tüm alanı kuşatmış.

Tasarımlarıyla dikkat çeken bu mutfakta, dolap ve tezgah arasında kalan bazı yerlerde lambrilerden yararlanılmış.

hemnet.se

Müstakil Ev, Mutfak, Yeşil mutfak, Country mutfak, Country

260 Metrekarelik Bu İki Katlı Ev Hayallerin Somut Hâli

Mutfağın devamında yer alan kapı ile doğrudan dış mekanlar ile bağlantı kurulmuş. Aynı zamanda bu bölümün gün ışığını alması da sağlanmış.

hemnet.se

Müstakil Ev, Mutfak, Yeşil mutfak, Country mutfak, Country

260 Metrekarelik Bu İki Katlı Ev Hayallerin Somut Hâli

Üst kata çıkan bu merdivenlerin bitişinde yer alan vitraylı pencere ile eve vintage hava katılmış. İçeri süzülen ışığın illüzyonist yansıması da cabası!

hemnet.se

Dubleks evler, Merdiven, Müstakil Ev, Hol

260 Metrekarelik Bu İki Katlı Ev Hayallerin Somut Hâli

Üst kattaki bu koridorun devamında çatı katının çok amaçlı salonu yer almış. Diğer cepheler de yatak odalarına açılmış.

hemnet.se

Çatı katı, Dubleks evler, Şömine, Duvar kağıdı, Duvar dekorasyonu

260 Metrekarelik Bu İki Katlı Ev Hayallerin Somut Hâli

Üst kattaki yatak odalarında biri!

hemnet.se

Yatak Odası

260 Metrekarelik Bu İki Katlı Ev Hayallerin Somut Hâli

Üst kattaki çocuk odalarından biri!

hemnet.se

Çatı katı, Dubleks evler, Çocuk Odası

260 Metrekarelik Bu İki Katlı Ev Hayallerin Somut Hâli

Giriş kattaki tuvalatte alanı verimli kullanmak için dolap tercih edilmemiş. Ayaklı lavabo ile sağlanan ferahlık, istiridye ayna ile pekiştirilmiş.

hemnet.se

Banyo, Banyo aynası, Banyo lavabosu

260 Metrekarelik Bu İki Katlı Ev Hayallerin Somut Hâli

Giriş kattaki bu banyoda sürgü cam kapılı alan, çamaşır odasına çıkıyor! İç bölümü ayna olan bu kapı alan yansıtıcı özelliğini de katmış!

hemnet.se

Banyo, Duşakabin

260 Metrekarelik Bu İki Katlı Ev Hayallerin Somut Hâli

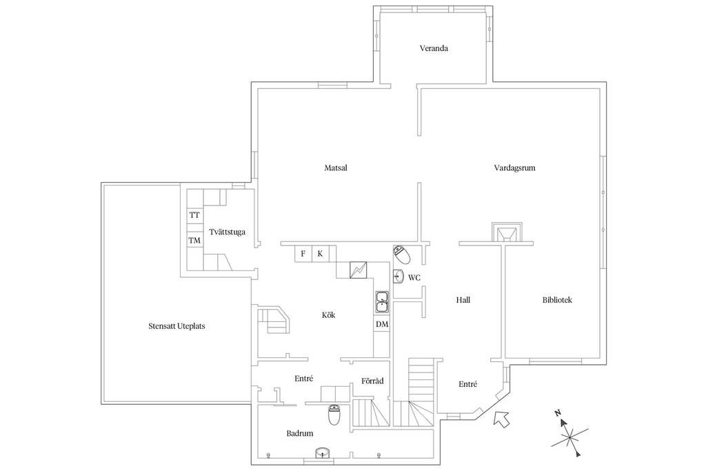
Giriş kat planı!

260 Metrekarelik Bu İki Katlı Ev Hayallerin Somut Hâli

Çatı katı planı!

Kaynak: Hemnet.se