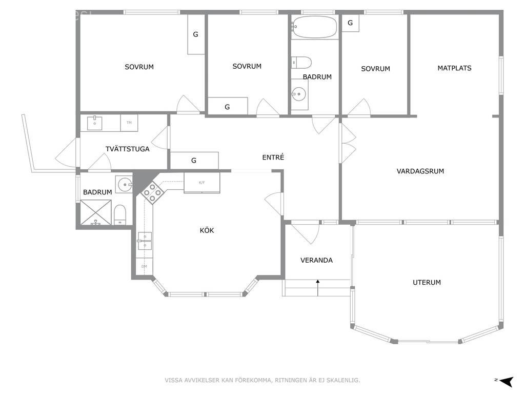
Şimdi sizinle yeni bir müstakil ev turuna çıkıyoruz. Bu evimize 114 m2'lik. Evin 3 odası var. Bunun dışında banyo, tuvalet ve çamaşır odasını da içine sığdırmayı başarmış.

Gelin evin detaylarına kareler üzerinden bakalım.

Tam Bir Aile Evi: Abartıdan Uzak 114 M2'lik Müstakil Ev

Evin dış cephesinden başlayalım. Oldukça samimi duran bu evde mavi siding kaplama tercih edilmiş. Evin önünde kapatılmış bir verandaya yer verilmiş.

Müstakil Ev, Bahçe

Tam Bir Aile Evi: Abartıdan Uzak 114 M2'lik Müstakil Ev

Evin giriş kapısının hemen yanında çok amaçlı bir vestiyer yerini kapmış. Bu hem kitaplık hem de askı! Bu bölümün devamında yer alan kapı ise salonun kapısı!

Antre, Müstakil Ev, Kitaplık

Tam Bir Aile Evi: Abartıdan Uzak 114 M2'lik Müstakil Ev

Antrenin solunda ise mutfak yer almış. Kubbemsi iki girişi olan bu alan, evin iç mekanın aydınlanmasında etkili olmuş.

Antre, Müstakil Ev

Tam Bir Aile Evi: Abartıdan Uzak 114 M2'lik Müstakil Ev

Mutfaktan yayılan ışık, kubbemsi kapılardan iç mekana yansımış. Bu kiriş tipi kapılar alanın mimari cazibesini arttırmış.

Antre, Müstakil Ev

Tam Bir Aile Evi: Abartıdan Uzak 114 M2'lik Müstakil Ev

İşte bütün alanın aydınlanmasına katkı sunan cumba pencereler: Bir cepheyi tamamen kuşatan bu pencereler ortama samimiyet de eklemiş.

Mutfak, Müstakil Ev

Tam Bir Aile Evi: Abartıdan Uzak 114 M2'lik Müstakil Ev

Evin salonu L şeklinde planlanmış Kapıdan ilk girişte oturma alanı oluşturulmuş. Devamında yemek bölümü kendini göstermiş.

Salon, Müstakil Ev

Tam Bir Aile Evi: Abartıdan Uzak 114 M2'lik Müstakil Ev

Oturma bölümünün bir cephesinde yer alan pencereler, yemek alanında aynı şekilde devam etmiş. Böylece bu odanın aydınlık olması da sağlanmış.

Salon, Müstakil Ev

Tam Bir Aile Evi: Abartıdan Uzak 114 M2'lik Müstakil Ev

Burası da yemek bölümü. Bunlar dışında evde yatak odaları ve banyolar yer almış. Dekorasyonuyla country havayı öne çıkaran bu ev, müstakil ev hayali kuranlar için oldukça ulaşılabilir bir örnek!

Yemek Odası, Müstakil Ev

Tam Bir Aile Evi: Abartıdan Uzak 114 M2'lik Müstakil Ev

Evin planı

Kaynak: Hemnet.se