Şimdi konuk olacağımız ev dışarıdan bakınca heybetli , büyük duruyor. Ama içine girince 83 m2'lik bir yaşam alanı. Ama bu yaşam alanı iki katlı ve her alanı çok kullanışlı.

Evin detaylarını gelin kareler üzerinden anlatalım!

Dışarıdan Bakınca Heybetli Duran Bu İki Katlı Ev Aslında 83 M2

Evin dış cephesi kırmızı siding kaplama. Doğramalar da beyaz renkli ahşaplar. Evin bir balkonu var. Bunun dışında iki girişi!

Müstakil Ev

Dışarıdan Bakınca Heybetli Duran Bu İki Katlı Ev Aslında 83 M2

Evin giriş holü oldukça geniş. Banyo ve çok amaçlı vestiyer odası bu hol boyunca yer almış.

Müstakil Ev, Antre

Dışarıdan Bakınca Heybetli Duran Bu İki Katlı Ev Aslında 83 M2

Holün en sonunda keyifli bir karşılama köşesi var. Daha doğrusu burası dinlenme köşesi. Sobaya yakın olduğu için ısınma problemi yok bu köşenin! Aynı zamanda küçük radyatör de var!

Müstakil Ev

Dışarıdan Bakınca Heybetli Duran Bu İki Katlı Ev Aslında 83 M2

Holün salona yakın bölümünde küçük bir vestiyer alanı bırakılmış. Evde alanlar arasındaki ayrımlar için farklı zemin ve duvar kaplamaları seçilmiş.

Dışarıdan Bakınca Heybetli Duran Bu İki Katlı Ev Aslında 83 M2

Salona yaklaşıldığında üst kata çıkan merdiven ve dışarıya açılan bir kapı planlanmış. Burası evin ana yaşam alanı!

Müstakil Ev

Dışarıdan Bakınca Heybetli Duran Bu İki Katlı Ev Aslında 83 M2

Salon, bir cephesinde oldukça bol şekilde diğer cephesinde de küçük pencere ile gün ışığını almış. Böylece aydınlık görünüm oluşmuş.

Müstakil Ev, Salon

Dışarıdan Bakınca Heybetli Duran Bu İki Katlı Ev Aslında 83 M2

Köşe noktaya gelen TV! Bu aslında koridor ile salonun da ayrım noktası. Hemen yanında dışarıya açılan kapı!

Müstakil Ev, Salon

Dışarıdan Bakınca Heybetli Duran Bu İki Katlı Ev Aslında 83 M2

Evin mutfak planında iki farklı alana dolaplar yapılmış. İlk dolap giriş kapısının hemen yanında başlamış. Diğer dolap pencerelerin olduğu duvara gelmiş. 

Müstakil Ev, Mutfak

Dışarıdan Bakınca Heybetli Duran Bu İki Katlı Ev Aslında 83 M2

Mutfakta dolaplar ile yemek bölümü, dışarıya açılan kapı sınır tutularak ayrılmış. Yemek alanının kırmızı duvarı ortamın enerjisini arttırmış.

Banyo, Beyaz, Ahşap Mobilya, Banyo seramikleri, Kırmızı duvar rengi

Dışarıdan Bakınca Heybetli Duran Bu İki Katlı Ev Aslında 83 M2

Mutfağın koridora açılan kapısının tam karşısında da soba yerini almış.

Banyo, Beyaz, Ahşap Mobilya, Banyo seramikleri, Gri duvar

Dışarıdan Bakınca Heybetli Duran Bu İki Katlı Ev Aslında 83 M2

Giyinme odas üst katta planlanmış. Küçük ama işlevsel bir alan olarak karşımızda!

Dışarıdan Bakınca Heybetli Duran Bu İki Katlı Ev Aslında 83 M2

Üst katta konumlandırılan yatak odası alan olarak oldukça geniş. Balkon da bu odaya bağlı. Aynı zamanda birçok penceresi var!

Müstakil Ev, Yatak Odası

Dışarıdan Bakınca Heybetli Duran Bu İki Katlı Ev Aslında 83 M2

Evin alt kat planı koridor gibi alanlara çok ayrıldığı için tek yatak odası var evde! Plan biraz verimsiz olsa da yatak odası tam hayal mekânı!

Müstakil Ev, Yatak Odası

Dışarıdan Bakınca Heybetli Duran Bu İki Katlı Ev Aslında 83 M2

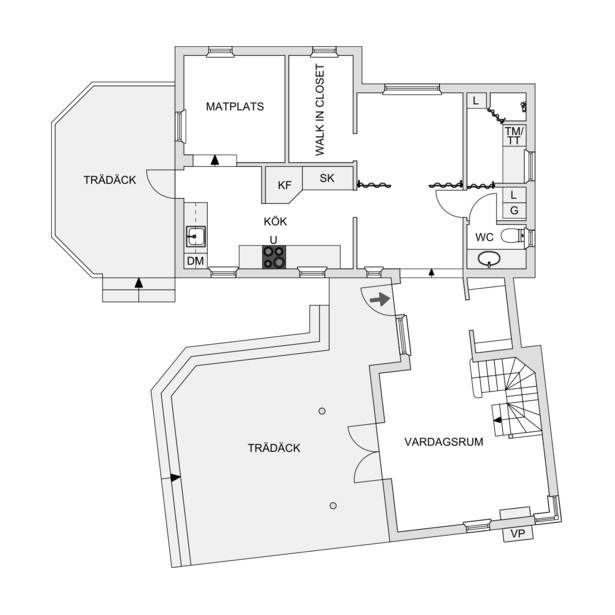
Evin planı!

Kaynak: Hemnet.se