Şimdi sizinle dışarıdan tek katlı görünen ama özünde üç kat içeren bir eve konuk oluyoruz. Evimizde daha önce görmediğinizi düşündüğümüz fikirler var. O yüzden hızlıca gezmeye başlayalım.

Tek Katlı Gibi Görünen 102 M2'lik Bu Ev Aslında Üç Kat

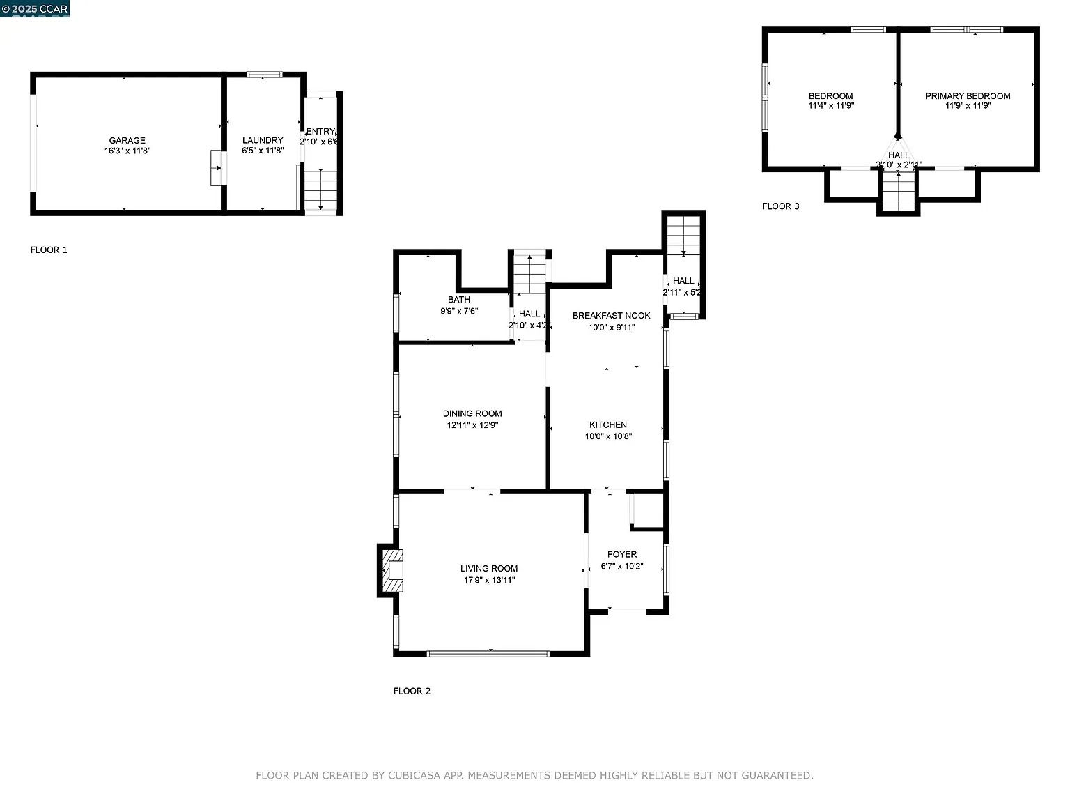
Evimiz yaklaşık olarak 103 m2. Evin içinde 2 yatak odası, bir banyo, çamaşır odası ve garaj var. Onun dışında birbirinden bağımsız salon, mutfak ve yemek odası bulunuyor.

zilow.com

Müstakil Ev

Tek Katlı Gibi Görünen 102 M2'lik Bu Ev Aslında Üç Kat

Eve dışarıdan bakıldığında tek katlı izlenimi veriyor. Ama evin alt katında garaj ve çamaşır odası var. Birkaç merdiven basamağı sonrasında ana kat planlanmış. Ana kattan küçük bir merdivenle de son kata erişim sağlanmış. Bir anlamda yatay ve dikey mimarinin ustalıkla buluşması...

zilow.com

Müstakil Ev

Tek Katlı Gibi Görünen 102 M2'lik Bu Ev Aslında Üç Kat

Evin giriş kapısının solunda salon yer alıyor. Salonun devamında ondan kapı ile ayrılan yemek odası konumlandırılmış.

zilow.com

Müstakil Ev, Antre

Tek Katlı Gibi Görünen 102 M2'lik Bu Ev Aslında Üç Kat

Giriş kapısından doğrudan ilerleyince bizi karşılayan oda mutfak. Mutfağın da yemek odasına açılan bir kapısı bulunuyor.

zilow.com

Müstakil Ev, Antre

Tek Katlı Gibi Görünen 102 M2'lik Bu Ev Aslında Üç Kat

Salonun iki cephesinden de gün ışığını alan ev böylece aydınlık olmuş. Bir cephede yer alan camekan tipi geniş pencere ön cepheye bakıyor. Diğer pencereler de evin yan cephesine açılıyor!

zilow.com

Müstakil Ev, Salon

Tek Katlı Gibi Görünen 102 M2'lik Bu Ev Aslında Üç Kat

Salonun doğrudan devamında yer alan yemek odası kapı ile salondan ayrılmış. Mutfakla da erişim sağlayan ayrı bir kapısı var bu alanın.

zilow.com

Müstakil Ev, Yemek Odası

Tek Katlı Gibi Görünen 102 M2'lik Bu Ev Aslında Üç Kat

Yemek odasının da bir cephesinde iki kanatlı geniş pencere yer almış. Dikey sürgü sistemli şekilde yapılan bu pencerelerin pervazı çıtalarla zenginleştirilmiş.

zilow.com

Müstakil Ev, Yemek Odası

Tek Katlı Gibi Görünen 102 M2'lik Bu Ev Aslında Üç Kat

Çok amaçlı köşelere sahip mutfak sahra beji dolapları ile oldukça ilgi çekici! Mutfağın bir yanı giriş koridoruna açılıyor diğer yanı da yemek odasına...

zilow.com

Müstakil Ev, Mutfak

Tek Katlı Gibi Görünen 102 M2'lik Bu Ev Aslında Üç Kat

Mutfağa oluşturulan bu köşe iki kişi için ideal alan. Daha büyük yemekler için doğrudan yemek alanına erişimin olması iyi fikir!

zilow.com

Müstakil Ev, Mutfak, Mutfak köşesi

Tek Katlı Gibi Görünen 102 M2'lik Bu Ev Aslında Üç Kat

Ana katta yer alan bu banyo açık renkler ile tasarlanmış. Böylece oldukça aydınlık görünmüş.

zilow.com

Müstakil Ev, Banyo

Tek Katlı Gibi Görünen 102 M2'lik Bu Ev Aslında Üç Kat

Banyoda kullanılan ahşap dolap da alanı hem doğallığa yanaştırmış hem de asalete...

zilow.com

Müstakil Ev, Banyo, Banyo seramikleri

Tek Katlı Gibi Görünen 102 M2'lik Bu Ev Aslında Üç Kat

Banyonun hemen yanından üst kata açılan merdiven! Evin katları arasında mesafe bırakılmadığı için tek katlı görünüm sağlanmış.

zilow.com

Hol, Merdiven

Tek Katlı Gibi Görünen 102 M2'lik Bu Ev Aslında Üç Kat

Merdivenleri çıkınca evin iki yatak odası bizi karşılıyor. Her iki odanın da genişlikleri birbirine yakın! Bu odanın iki cephesi gün ışığını alıyor.

zilow.com

Çocuk Odası, Müstakil Ev

Tek Katlı Gibi Görünen 102 M2'lik Bu Ev Aslında Üç Kat

Bu oda ise tek cepheden alıyor gün ışığını. Ama yine de yeteri kadar aydınlık. Bunda evin bütün iç mekan detaylarının bembeyaz olmasının etkisi var!

zilow.com

Müstakil Ev, Yatak Odası

Tek Katlı Gibi Görünen 102 M2'lik Bu Ev Aslında Üç Kat

Bodrum kattan ana kata çıkan merdiven! Bu katta çamaşır odası ve garaj konumlandırılmış.

zilow.com

Hol, Merdiven

Tek Katlı Gibi Görünen 102 M2'lik Bu Ev Aslında Üç Kat

Çamaşır odası...

zilow.com

Müstakil Ev, Çamaşır odası

Tek Katlı Gibi Görünen 102 M2'lik Bu Ev Aslında Üç Kat

Evin planı!

Kaynak. Zilow.com 

zilow.com