Müstakil ev yapacaklara örnekler sunarken genellikle orta büyüklükteki ya da küçük metrekarelerdeki evleri sunmaya çalışıyoruz. Ama bu defa çizginin biraz dışına çıkmak istedik. Diğer modellere göre lüks sayılabilecek bir villa ile karşınıza çıkalım dedik! 

Yapılmaya kalktığında günümüz fiyatlarıyla oldukça maliyetli olabilecek bu modeli daha çok detaylarından ilham almanız için paylaşıyoruz. Hem belki de böyle bir ev manifestlemek isteyeceksiniz, belli mi olur?

Hadi başlayalım!

Müstakil Ev Modelleri: 347 M2'lik Üç Katlı Büyüleyici Villa!

347 m2 yaşam alanına sahip olan evin, en alt katında bodrum bulunuyor. Bodrum üstünde de iki kat mevcut! Genişçe bir bahçesi bulunan evin üst katında da, manzaranın tadını çıkarmak için iki balkon yer almış!

engelvoelkers.com

Müstakil Ev, Villa, Havuz, Dış cephe, Bahçe

Müstakil Ev Modelleri: 347 M2'lik Üç Katlı Büyüleyici Villa!

Akdeniz ruhunun yansıtıldığı mimari detaylarda beyaz baskın renk olmuş. Kemerler, ahşap pergolalar ve kiremit çatılar ile de dekora sıcak bir kır evi havası verilmiş!

engelvoelkers.com

Müstakil Ev, Villa, Dış cephe, Bahçe

Müstakil Ev Modelleri: 347 M2'lik Üç Katlı Büyüleyici Villa!

Moroccan ezgilerin de hakim olduğu evde, arka bahçeye bakan bölümde geniş veranda alanı oluşturulmuş. Verandaları çevreleyen kemerler de, eve egzotik hava katmış.

engelvoelkers.com

Müstakil Ev, Villa, Havuz, Dış cephe, Bahçe

Müstakil Ev Modelleri: 347 M2'lik Üç Katlı Büyüleyici Villa!

5 yatak odası bulunan evin, her iki katında açık konsept salon yer almış. Bunun dışında 6 banyo, eğlence odası, kapalı teras ve çamaşır odası da tasarlanmış!

engelvoelkers.com

Salon

Müstakil Ev Modelleri: 347 M2'lik Üç Katlı Büyüleyici Villa!

Yerden ısıtıma sisteminin kullanıldığı evde, ortamın samimi ruhuna uyumlu olması için şöminelere de yer verilmiş!

engelvoelkers.com

Yemek Odası, Modern, Açık konsept yaşam alanı, Somon Rengi, Halı, Yemek odası avizesi, Aydınlatma

Müstakil Ev Modelleri: 347 M2'lik Üç Katlı Büyüleyici Villa!

Evin 1. katında Amerikan mutfak konumlandırılmış. Bunun dışında bahçede de açık bir mutfak, yerini kapmış!

engelvoelkers.com

Amerikan Mutfak, Mutfak

Müstakil Ev Modelleri: 347 M2'lik Üç Katlı Büyüleyici Villa!

İç mekan detaylarında natürel dokuların kullanıldığı evde, her alanda parke yerine mikro beton ve zemin seramikleri tercih edilmiş.

engelvoelkers.com

Merdiven, Dubleks evler, Aydınlatma, Halı

Müstakil Ev Modelleri: 347 M2'lik Üç Katlı Büyüleyici Villa!

İki yatak odası bodrum katta yer alan evin, bodrum katı da doğal ışığı alacak şekilde tasarım yapılmış. Bodrum kattaki odalarda genel olarak yatay pencereler ile ışık verimliliği arttırılmış!

engelvoelkers.com

Yatak Odası

Müstakil Ev Modelleri: 347 M2'lik Üç Katlı Büyüleyici Villa!

Kalan yatak odaları da 2. katta yer alan evin, 1. katı salon, yemek alanı ve mutfak için ayrılmış. 

engelvoelkers.com

Yatak Odası

Müstakil Ev Modelleri: 347 M2'lik Üç Katlı Büyüleyici Villa!

Her katta yer alan banyolarda da gün ışığını alabilmek için pencerelere yer verilmiş. Her banyonun da genişliğine de ayrıca dikkat edilmiş!

engelvoelkers.com

Banyo

Müstakil Ev Modelleri: 347 M2'lik Üç Katlı Büyüleyici Villa!

Master banyo dışındakilerde ayakta duş alanı yer alırken master banyoda küvet de unutulmamış!

engelvoelkers.com

Banyo

Müstakil Ev Modelleri: 347 M2'lik Üç Katlı Büyüleyici Villa!

Evin bir başka banyosu!

engelvoelkers.com

Banyo

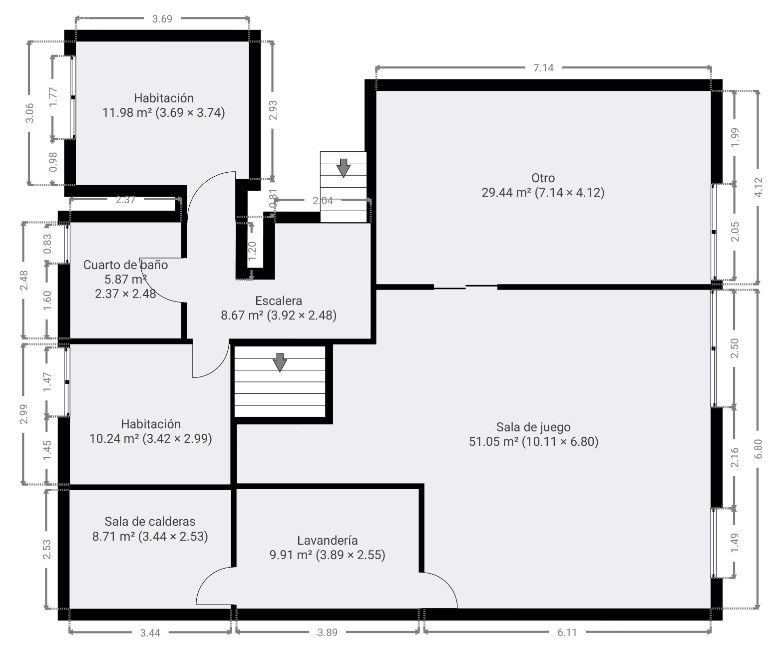
Müstakil Ev Modelleri: 347 M2'lik Üç Katlı Büyüleyici Villa!

Evin 1. kat planı

engelvoelkers.com

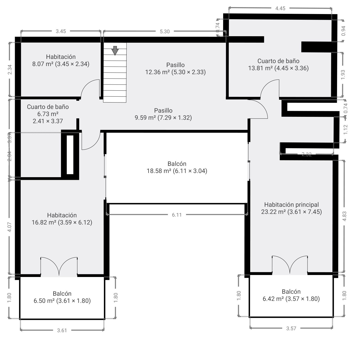
Müstakil Ev Modelleri: 347 M2'lik Üç Katlı Büyüleyici Villa!

Evin 2.kat planı!

Kaynak: engelvoelkers.com

engelvoelkers.com