"Küçük bir evim olsun, orada huzuru bulayım" diye aklınızdan geçiriyor musunuz? O zaman arsanız da varsa size tam olarak bunu sunacak bir evi gösteriyoruz.

Evin dışından, içinden ve planından karelerle size ilham olmaya çalışacağız. Gerisi de size kalıyor artık!

Hadi başlayalım!

66 Metrekarelik Bu Ahşap Ev Kaostan Kaçmak İsteyenler İçin İdeal

Yaşam alanı 66 metrekare olan bu ev, kalabalık olmayan aileler için uygun. Çünkü içerisinde bir yatak odası planlanmış. Kalan kısım da mutfak, salon ve banyo için ayrılmış.

Ahşap ev, Müstakil Ev

66 Metrekarelik Bu Ahşap Ev Kaostan Kaçmak İsteyenler İçin İdeal

Evin önünden ahşap iskele ile geniş bir veranda yapılmış. Bu bölüm, sıcak havalarda alternatif bir yemek odası görevi görmüş.

Ahşap ev, Müstakil Ev

66 Metrekarelik Bu Ahşap Ev Kaostan Kaçmak İsteyenler İçin İdeal

Verandanın üstü tamamen açık bırakılsa da, veranda içerisinde yapılan çardak ile korunaklı alan sağlanmış.

Ahşap ev, Müstakil Ev

66 Metrekarelik Bu Ahşap Ev Kaostan Kaçmak İsteyenler İçin İdeal

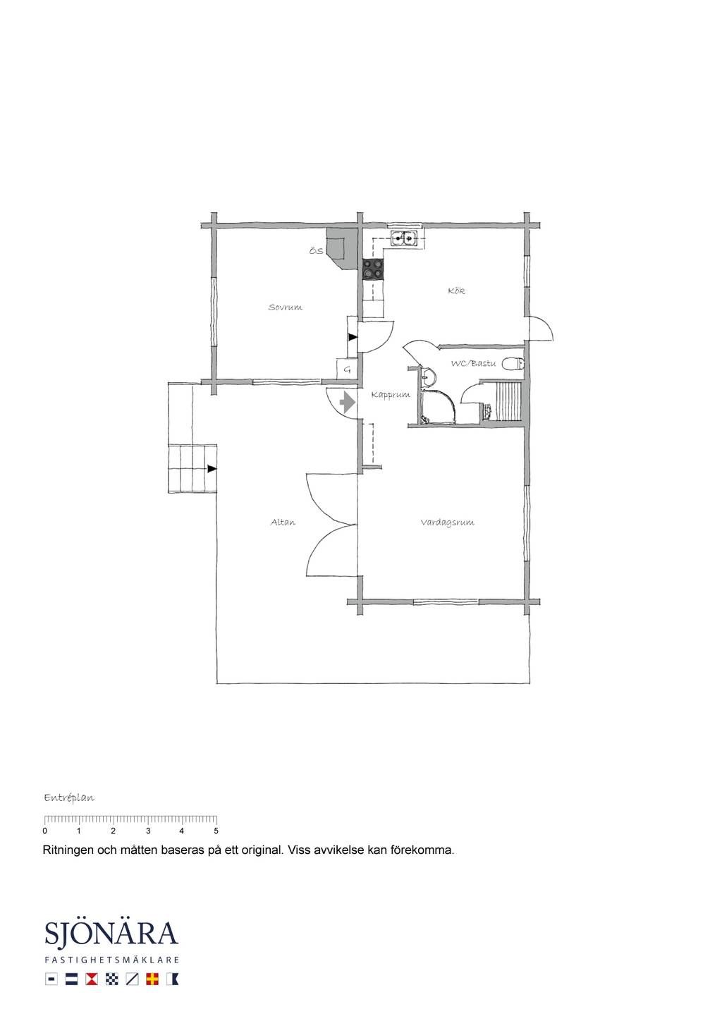
Evin planında girişin solunda mutfak yer almış. Sağında da salon. Yatak odası da girişin hemen yanında L tipi planla konumlandırılmış. Girişin tam karşısında da banyo yer almış.

Ahşap ev, Müstakil Ev

66 Metrekarelik Bu Ahşap Ev Kaostan Kaçmak İsteyenler İçin İdeal

Yeteri kadar geniş olan mutfakta bir taraf hazırlık alanı olmuş. Bir taraf da yemek bölümü!

Ahşap ev, Müstakil Ev

66 Metrekarelik Bu Ahşap Ev Kaostan Kaçmak İsteyenler İçin İdeal

İç mekanda da ahşapların baskın olduğu evde, mutfaktan doğrudan dışarıya açılan kapı unutulmamış! 

Ahşap ev, Müstakil Ev

66 Metrekarelik Bu Ahşap Ev Kaostan Kaçmak İsteyenler İçin İdeal

Girişin sağ tarafında kalan salon için de geniş alan ayrılmış. Bu evin planı yapılırken zaten ortak yaşam alanlarının büyüklüğüne dikkat edilmiş.

Ahşap ev, Müstakil Ev

66 Metrekarelik Bu Ahşap Ev Kaostan Kaçmak İsteyenler İçin İdeal

Bir cephesinde büyük pencerenin yer aldığı bu alanda, diğer cephede de küçük dikdörtgen bir pencere bulunmuş.

Ahşap ev, Müstakil Ev

66 Metrekarelik Bu Ahşap Ev Kaostan Kaçmak İsteyenler İçin İdeal

Salonun bir cephesinde de tıpkı mutfakta olduğu gibi dışarı açılan cam kapı yer almış. Bu sayede hem ortamın aydınlık hali pekiştirilmiş hem de dışarı ile doğrudan bağlantı kurulmuş.

Ahşap ev, Müstakil Ev

66 Metrekarelik Bu Ahşap Ev Kaostan Kaçmak İsteyenler İçin İdeal

Evin tek yatak odası da alan olarak sıkışık bir his vermemiş. Geniş şekilde planlanan bu bölümden de ahşabın sıcaklığı kendini göstermiş.

Ahşap ev, Müstakil Ev

66 Metrekarelik Bu Ahşap Ev Kaostan Kaçmak İsteyenler İçin İdeal

Yatak odasından başka bir açı!

Ahşap ev, Müstakil Ev

66 Metrekarelik Bu Ahşap Ev Kaostan Kaçmak İsteyenler İçin İdeal

Evin planı!

Kaynak: Hemnet.se 

Benzer Konular