Müstakil ev yaptırmak başlı başına maliyetli bir süreç! Projesinden tut diğer aşamalarına kadar. Bu süreçte size yardımcı olması adına Çevre ve Şehircilik Bakanlığı Yapı İşleri tarafından sunulmuş kırsal alanlara uygun ev projelerini gösterelim istedik.

Evinizi kendiniz yapacaksanız, geçici müteahhitlik belgesi aldıktan sonra proje sürecinde bu örneklerden yararlanabilirsiniz. Bu sayede proje çizim maliyetinden kurtulabilirsiniz. Buradaki projelerin devamına da yazı sonundaki linkten bakabilirsiniz.

Hadi başlayalım.

Köy Evi Yapacaklara Bakanlık Onaylı Tek Katlı Köy Evi Projeleri!

121 M2 4+1 Tek Katlı Köy Evi Projesi

Ege Bölgesi'nin yöresel mimari şartlarına uygun olarak sunulan bu proje, 121 m2 olarak tasarlanmış. Evin iç mekanı için ayrılan alan yaklaşık olarak 110 m2 olmuş. Veranda ve merdiven için de kalan alan kullanılmış.

Evin planında girişin devamında sofa oluşturulmuş. Sofanın sağ tarafında iki yatak odası yer almış. Sol tarafında da 2 yatak odası, mutfak, banyo ve alaturka tuvalet konumlandırılmış.

Müstakil Ev

Köy Evi Yapacaklara Bakanlık Onaylı Tek Katlı Köy Evi Projeleri!

Planda yer alan odaların genişliği ayarlanırken ebeveyn yatak odası için yaklaşık olarak 13 m2 alan ayrılmış. Kalan iki odanın genişliği yaklaşık olarak 11 m2, diğerinin de 9 m2 olmuş!

24 m2'lik sofanın solunda kalan mutfağın kapladığı alan da yaklaşık olarak 13 m2 olmuş. Banyo ve alaturka tuvalet için de yaklaşık olarak 7 m2 alan planlanmış.

Müstakil Ev

Köy Evi Yapacaklara Bakanlık Onaylı Tek Katlı Köy Evi Projeleri!

Evin zemin kat planı!

Köy Evi Yapacaklara Bakanlık Onaylı Tek Katlı Köy Evi Projeleri!

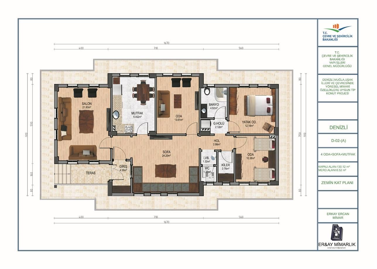
116 M2 Tek Katlı Köy Evi Projesi!

Kapalı alanı yaklaşık olarak 98 m2 olan bu evin, veranda ve merdiven alanı için 18 m2 ayrılmış.

3 odalı evin yatak odaları sırasıyla 15, 12 ve 10 m2 olarak tasarlanmış. 15 m2 olan evin salonu ve 12 m2'lik mutfağı dışında, girişten sonra 25 m2'lik sofa bulunmuş!

Müstakil Ev

Köy Evi Yapacaklara Bakanlık Onaylı Tek Katlı Köy Evi Projeleri!

Yüksek taş subasman üzerine planlanan evde, geniş teras dışında yaklaşık 3 m2'lik kiler yer almış.

Müstakil Ev

Köy Evi Yapacaklara Bakanlık Onaylı Tek Katlı Köy Evi Projeleri!

Evin zemin kat planı!

Köy Evi Yapacaklara Bakanlık Onaylı Tek Katlı Köy Evi Projeleri!

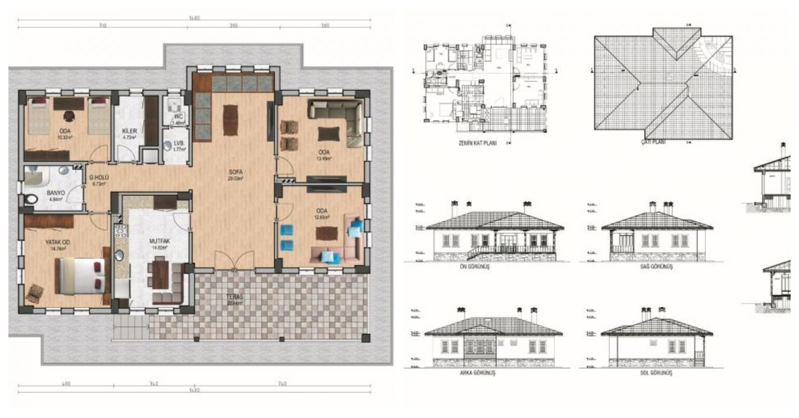
150 M2 Tek Katlı Köy Evi Projesi!

Kapalı konut alanı toplam 130,44 m2 olan bu evin verandası da 20,44 m2 olarak planlanmış.

Ege Bölgesi'nin yöresel şartlarına uygun olarak oluşturulan bu proje, alaturka kiremit detaylı şekilde çizilmiş.

Müstakil Ev

Köy Evi Yapacaklara Bakanlık Onaylı Tek Katlı Köy Evi Projeleri!

Evin planında 4 oda, sofa, mutfak, banyo, alaturka ve alafranga tuvalet ile kiler yer almış. Girişin hemen devamında planlanan sofa için yaklaşık olarak 29 m2 alan ayrılmış.

Sofanın sağ tarafında 2 oda konumlandırılmış. Kalanlar da sol bölümde bulunmuş.

Köy Evi Yapacaklara Bakanlık Onaylı Tek Katlı Köy Evi Projeleri!

Evin odaları sırasıyla yaklaşık olarak 14, 13, 12 ve 10 m2 olarak planlanmış. Mutfak için de yaklaşık olarak 14 m2 alan ayrılmış.

Alafranga tuvaleti içinde barındıran banyo yaklaşık olarak 5 m2 olmuş. Banyo dışında yaklaşık 4 m2'lik alaturka tuvalet de planlanmış.

Köy Evi Yapacaklara Bakanlık Onaylı Tek Katlı Köy Evi Projeleri!

Evin planı ve taslak çizimi!

Köy Evi Yapacaklara Bakanlık Onaylı Tek Katlı Köy Evi Projeleri!

110 M2 Rüzgarlıklı Tek Katlı Köy Evi Projesi!

Ankara ve civarı için yöresel mimariye uygun olarak sunulan bu köy evi projesi 110 m2 olarak çizilmiş.

Köy Evi Yapacaklara Bakanlık Onaylı Tek Katlı Köy Evi Projeleri!

3 yatak odası olan evde, ayrı mutfak, girişin devamında sofa ve bir salon yer almış. Ebeveyn banyosu ve misafir banyosu dışında bir de alaturka tuvalet, plan içinde yer almış.

Köy Evi Yapacaklara Bakanlık Onaylı Tek Katlı Köy Evi Projeleri!

Evin zemin kat planı!

Köy Evi Yapacaklara Bakanlık Onaylı Tek Katlı Köy Evi Projeleri!

136 M2 Tek Katlı Köy Evi Projesi!

Evin kapalı alanı için 130 m2 ayrılan bu projede, merdiveni kapsayan açık alan için de 6 m2 planlanmış.

Koridor tipi girişi olan evin sonrasında sofa yer almış. Sofa, bütün alanların tam ortasında konumlandırılmış.

Sofanın sağ tarafı gece holüyle 2 yatak odası için düşünülmüş. Oturma odası ve mutfak, sofanın tam karşısında yer almış. Sol tarafta da salon olarak planlanan geniş oda bulunmuş.

Köy Evi Yapacaklara Bakanlık Onaylı Tek Katlı Köy Evi Projeleri!

İsteğe göre yatak odalarına da dönüştürülebilecek salon yaklaşık olarak 21 m2 olmuş, oturma odası da yaklaşık olarak 13 m2...

Eevin master yatak odası 12 m2, çocuk odası olarak düşünülen odası da yaklaşık olarak 10 m2 olmuş!

13 m2'lik mutfak dışında evin planında banyo, alatrka tuvalet ve kiler yer almış!

Köy Evi Yapacaklara Bakanlık Onaylı Tek Katlı Köy Evi Projeleri!

Evin zemin kat planı!

Daha fazlasına buradan ulaşabilirsiniz.

Köy Evi Yapacaklara Bakanlık Onaylı Tek Katlı Köy Evi Projeleri!

Pinlemek isteyenlere...

Benzer Konular