Yeni bir ev yaptırma niyetiniz var ve plandaki banyodan memnun değil misiniz? O zaman sizin için derlediğimiz bu banyo örneklerine ve banyoların projelerine göz atmanızı tavsiye ederiz. Çünkü hepsinde kullanışlı detaylar mevcut!

Hadi başlayalım!

Yeni Ev Yaptıracaklar İçin Şık ve Kullanışlı Banyo Projeleri!

T-Tipi Banyo!

İlk örneğimiz T tipi bir banyodan! Bu banyoda doğrusal bir bölüm var, bir de ayrı çıkntı!

Bu banyonun içerisinde lavabo, klozet ve duşakabin dışında çamaşır ve kurutma makineleri de bulunuyor.

Alvhem.com

Banyo

Yeni Ev Yaptıracaklar İçin Şık ve Kullanışlı Banyo Projeleri!

Banyonun planında doğrusal alana klozet, lavabo ve duşakabin yerleştirilmiş. Ortamı çok basık göstermemek için şeffaf bir duşakabin kullanılmış.

Banyonun çıkıntılı kısmında da çamaşır ve kurutma makineleri kullanılmış. Bu makinelerin yerleşimi için zeminden eni çok geniş olmayan seviyede basamak oluşturulmuş. Makineler bu basamağın üstüne yerleştirilmiş. Makine üstlerinde de bir rafa yer verilmiş!

Yeni Ev Yaptıracaklar İçin Şık ve Kullanışlı Banyo Projeleri!

Dikdörtgen Tipi Banyo!

Dikdörtgen tipi bu banyoda, alan çok dar olmadığı için iki taraf da değerlendirilebilmiş.

Alvhem.com

Banyo

Yeni Ev Yaptıracaklar İçin Şık ve Kullanışlı Banyo Projeleri!

Banyo içerisinde yerleşim yapılırken duşakabin kapının karşısındaki duvarda konumlandırılmış.

Lavabo ve klozet de peşi sıra bir duvarı kaplamış. Bunların karşısındaki duvara da, çok amaçlı dolaplar yerleştirilmiş.

Yeni Ev Yaptıracaklar İçin Şık ve Kullanışlı Banyo Projeleri!

Çok Köşeli Banyo!

Çok köşeli planı olan bu banyoda, kapı ile doğrusal hizada lavabo, çamaşır ve kurutma makinesi yer almış.

Alvhem.com

Banyo

Yeni Ev Yaptıracaklar İçin Şık ve Kullanışlı Banyo Projeleri!

Kapının hemen devamında çamaşır ve kurutma makinelerini içine alan dolaplar kullanılmış. Bunlara çapraz olacak şekilde de lavabo yerleştirilmiş.

Banyonun çıkıntılı planında bir küvete yer verilmiş. Klozet de iki duvarın keşisim noktası olmuş!

Yeni Ev Yaptıracaklar İçin Şık ve Kullanışlı Banyo Projeleri!

Koridor Tipi Banyo!

Koridor tipi bu örnek banyoda, karşılıklı alanlar kullanılduğında ortam daralacağı için tek taraf değerlendirilmiş.

Alvhem.com

Banyo

Yeni Ev Yaptıracaklar İçin Şık ve Kullanışlı Banyo Projeleri!

Banyonun planından kapının karşısında dolap ve lavabo yer almış. Klozet de lavabonun devamında konumlandırılmış. 

Duşakabin için geniş alan ayrılan banyoda, kafes tipi duşakabin tercih edilmiş.

Yeni Ev Yaptıracaklar İçin Şık ve Kullanışlı Banyo Projeleri!

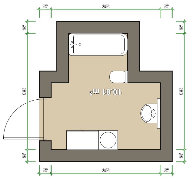
Asimetrik Banyo!

Asimetrik bir planı olan bu banyoda, işlevsiz çıkıntılar yerleşimi zorlayan detaylardan olmuş!

Alvhem.com

Banyo

Yeni Ev Yaptıracaklar İçin Şık ve Kullanışlı Banyo Projeleri!

Banyonun yerleşim planında çamaşır ve kurutma makinesi üst üste kullanılmış. Bunların karşısındaki duvarda da klozet ve lavabo yer almış.

Köşeli duşakabinin kullanıldığı banyoda, şeffaf kapı sayesinde alan daha aydınlık görünmüş!

Daha fazla banyo örneği için sitemizdeki örnekleri inceleyebilirsiniz.

Yeni Ev Yaptıracaklar İçin Şık ve Kullanışlı Banyo Projeleri!

Pinlemek isteyenlere...

Benzer Konular